I want to purchase a title or plan, and have some questions
You can purchase a title or plan from a Property Report by selecting Titles & Plans under Research Tools.
We'll show you how to order titles, plans and other documents through the property report, and also answer some FAQ's such as:
- Didn't receive a Title or Plan
- Title or Plan report PDF not opening
- How much I will be charged for documents
As well as many others.
Pricefinder provides access to Titles and Plans in Queensland, New South Wales & Victoria. In Queensland you can also order Dealing Images, Community Title Schemes and Community Management Statements.
Purchasing Documents
The steps to purchase different documents are outlined below
A title shows the current owners of a specific lot and lists any registered interests such as easements, mortgages etc. A copy of any registered interests can be requested using a dealing image search.
- Search for a property address to open the Property Report
- Scroll down and select Titles & Plans under Research Tools
- Select Purchase Title
- A complete purchase box will appear to the right, confirm the Search Type is correct (i.e if you want a Title search this should say Title)
- Enter your Admin Password and select Purchase
- A confirmation will appear with an option to download the document. The document will also be emailed to you.
A sample Queensland title (click to enlarge):
- Search for a property address to open the Property Report
- Scroll down and select Titles & Plans under Research Tools
- Select Purchase Plan
- A complete purchase box will appear to the right, confirm the Search Type is correct (i.e if you want a Title search this should say Title)
- Enter your Admin Password and select Purchase
- A confirmation will appear with an option to download the document. The document will also be emailed to you.
A sample Queensland plan image (click to enlarge):
Dealing images are documents relating to the a title, such as ownership transfers, mortgages, easements, caveats. A dealing will be a 9 digit number that may be shown on a title or plan (depending on the type of registered interest).
- Search for a property address to open the Property Report
- Scroll down and select Titles & Plans under Research Tools
- For Search Type select Dealing Image Search under Purchase Other Searches
- Enter the document number under Dealing Number and select Go
- A complete purchase box will appear to the right, confirm the Search Type is correct (this will say Dealing for any easements/dealings/transfers etc)
- Enter your Admin Password and select Purchase
- A confirmation will appear with an option to download the document. The document will also be emailed to you.
A sample Queensland Transfer, one type of Dealing Image (click to enlarge):
Community Title Scheme
A Community Title Scheme search will include the following information:
- Full scheme name and address of the body corporate
- CMS number and CMS dealing number
- Type of regulation module
- Associated title references and plan numbers
- Identify the Community Title Scheme Number
Where can I find the Community Title Scheme Number?The CTS number can be found on a title search for any property included in the scheme, or can be found on the body corporate property report on Pricefinder:
• Shown on the title for any property included in the scheme:
• Shown under the 'Current Owner' for the Body Corporate property in Pricefinder
Search for the address (or building name) in a Property Search, and find the property for that address with a Current Owner of BODY CORPORATE FOR 'SCHEME NAME' COMMUNITY TITLE SCHEME xxx.
The number shown under xxx is the Community Title Scheme number. - Search for the property address to open the Property Report
- Scroll down and select Titles & Plans under Research Tools
- Under Purchase Other Searches select Community Title Search as Search Type
- Enter the Community Title Scheme Number and select Go
- A complete purchase box will appear to the right, confirm the Search Type & details are correct
- Enter your Admin Password and select Purchase
- A confirmation will appear with an option to download the document. The document will also be emailed to you.
A sample Community Title Scheme (click to enlarge):
The Community Title Scheme will include the Community Management Statement Dealing No that is required to order a Community Management Statement.
Community Management Statement (CMS)
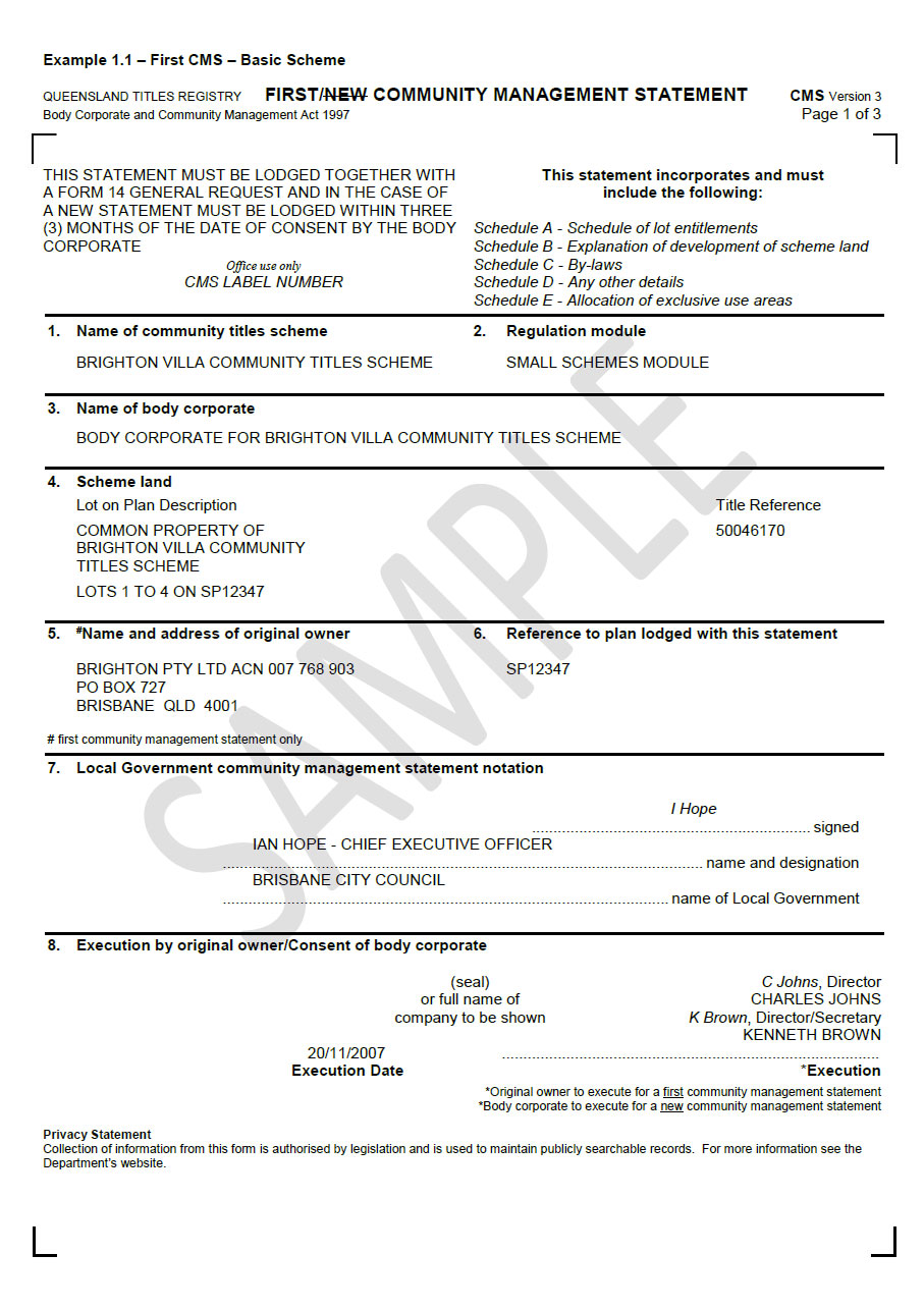
A Community Management Statement (CMS) includes five schedules that sets out the rules and development of a body corporate, contributions towards upkeep and any common property allocated to individual lots.A sample Community Management Statement looks like (click to enlarge):
Ordering a Community Management Statement (CMS)
Once you have obtained the Community Management Statement Dealing Number from the Community Title Scheme search, you can order the Community Management Statement.- Search for a property address to open the Property Report
- Scroll down and select Titles & Plans under Research Tools
- For Search Type select Dealing Image Search under Purchase Other Searches
- Enter the Community Management Statement Dealing Number under Dealing Number and select Go
- A complete purchase box will appear to the right, confirm the details are correct
- Enter your Admin Password and select Purchase
- A confirmation will appear with an option to download the document. The document will also be emailed to you.
Frequently Asked Questions
Below are some Frequently Asked Questions abount ordering documents on Pricefinder.
To activate titles per user:
- Login to Pricefinder (you must be an Administrator)
- Hover on your name in the top right and select User Details
- Select Edit User
- Select Purchase Titles then Save User
- Repeat until all necessary users have been enabled
Any users who are not enabled will still have access to purchase titles & plans, but will be required to use the administrator password.
If you wish to restrict access further, this password can be changed by contacting Pricefinder Support via the Chat icon.
If you're unsure of the password, check with your office administrator or click the Chat icon to contact Pricefinder Support.
As Pricefinder incurs charges for all documents ordered, it is not possible to remove charges for documents that have been re-ordered after 24 hours.
Please note, this is the only reference for the document on the invoice, so when adding your own reference ensure it is relevant for your purpose.
Titles & plans are not available for users on the Investor package. If you are on the Investor package, you can purchase the documents direct from the local state or territory Government.
| Queensland | Cost (ex GST) |
| Title | $23.60 |
| Plan | $24.50 |
| Community Title Scheme | $11.80 |
| Dealing | $51.80 |
| New South Wales | |
| Title or Plan | $22.70 |
| Victoria | |
|
Title Plan |
$20.00 $18.10 |
Documents from other states can be requested directly from the relevant State or Territory Government websites listed below:
| State | Government Website |
| Australian Capital Territory | ACTLIS |
| South Australia | SAILIS |
| Tasmania | The LIST |
| Western Australia | Landgate |
| Northern Territory | NT Land Titles |
If you have any feedback about this article please let us know in the comments. If you need further assistance from our Support Team contact us via the Chat icon during business hours.
Comments
broken link to SAILIS please update to https://sailis.lssa.com.au/home/auth/login or https://sailis.lssa.com.au/products/titleSearch/registerSearchPlus?form
Please sign in to leave a comment.